Een populaire keuze bij renovaties. De FALK 1100 TR3+ EKO werkt met 1100 mm extra breed en is daarmee de voordeligste keuze.
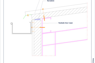
De FALK 1100 TR3+ EKO is een stijlvol dakelement, geschikt voor daken vanaf 4 graden dakhelling. De buitenplaat is van geprofileerd staal en bevat 3 kronen per 1100 mm. De binnenzijde is afgewerkt met een wit stucco aluminium folie.
Het folie is bestand tegen ammoniakdampen en is dus zeer geschikt voor agrarische omgevingen. Een nadeel van het folie is dat het lichte rimpelvorming bevat. Als uitstraling aan de binnenzijde van het pand een rol speelt, adviseren we om te kiezen voor een stalen binnenplaat, in dit geval de FALK 1100 TR3+.
Configureer je paneel
Kies het paneeltype en de gewenste kleur<br><br>Let op: Kleuren op je beeldscherm wijken af van de werkelijkheid. Vraag een kleurstaal aan voor de beste kleurenweergave!
| Kerndikte [mm] | Totale hoogte [mm] | Rc-waarde NTA 8800 [m²K/W] | R-waarde | Gewicht [kg/m²] | Brandklasse |
|---|---|---|---|---|---|
| 30 | 60 | 1,61 | 1,75 | 6,2 | B-s2,d0 |
| 40 | 70 | 2,09 | 2,23 | 6,6 | B-s2,d0 |
| 50* | 80 | 2,57 | 2,70 | 7,0 | B-s2,d0 |
| 60 | 90 | 3,04 | 3,18 | 7,4 | B-s2,d0 |
| 100* | 130 | 4,94 | 5,10 | 9,0 | B-s2,d0 |
* op aanvraag verkrijgbaar
| Werkende breedte | 1100 mm |
| H.o.h. afstand kronen | 367 mm |
| Profielhoogte | 30 mm |
| Kernmateriaal | PIR-isolatieschuim (CradleCore® op aanvraag verkrijgbaar) |
| Eindoverlap | Eindoverlap tussen de 5 mm en 300 mm. |
| Legrichting | Linkse en rechtse uitvoering |
| Coating | Buitenzijde: Colorcoat HPS200 Ultra® / Colorcoat Prisma® (andere coatings op aanvraag) Binnenzijde: Gebroken wit stucco (ca. RAL 9002) |
| Garanties | FALK Paneelgarantie & Confidex® garantie (indien van toepassing) |
| Staaldikte | Buiten: 0,5 mm (standaard) Binnen: Aluminium folie (De witte aluminium stucco binnenzijde dient als functionele afwerking. Deze kan lichte rimpelvorming bevatten. Als uitstraling aan de binnenzijde van een pand een rol speelt adviseren we om te kiezen voor een stalen binnenplaat, in dit geval de FALK 1100 TR3+) |
| Minimale lengte | 2.300 mm (korter op aanvraag) |
| Maximale lengte | 25.000 mm in overleg (vanaf 15.000 mm specifieke montagevaardigheden vereist) |
| Geluidsisolatie | Circa 27 dB(A) |
| Bedrijfscertificaten | BES 6001, ISO 9001, ISO 14001 |
| Productcertificaten | Typenfrüfung & FM op aanvraag |
| Overspanning | Bereken de overspanning op FALKULATOR.NL |
Met de FALKULATOR Web heb je in enkele stappen een indicatie van de overspanning van dit paneel in jouw situatie. Wil je een meer nauwkeurige berekening? Gebruik dan de FALKULATOR Standaard of FALKULATOR Expert!
Het verschil in de minimale of maximale overspanning hangt af van de positie van het paneel in een gebouw: sommige zones worden zwaarder belast dan anderen. Daarnaast zijn bovenstaande waarden exclusief schroefberekening. Gebruik de FALKULATOR Standaard of FALKULATOR Expert om dit te berekenen.
De sandwichpanelen van FALK zijn verkrijgbaar in vrijwel elke denkbare kleur. De buitenplaat wordt in veel gevallen uitgevoerd met een kwaliteitscoating van Tata Steel (Colorcoat HPS200 Ultra® of Colorcoat Prisma®). De binnenplaat wordt standaard uitgevoerd in de kleur FALK Gebroken Wit. Bij benadering komt dit overeen met RAL 9002. Echter kun je hier ook een eigen kleur kiezen uit de kleurenbibliotheek. Bekijk hier al onze kleuren en vraag een kleurensample aan!
De geïsoleerde dakplaten van FALK zijn leverbaar met een zogenoemde cutback (CB). Dit is een standaard optie bij de productie, waarbij je de lengte van de cutback zelf kunt bepalen. Over het algemeen variëren deze tussen de 25 en 300 mm.
Een FALK EKO element is een goedkopere oplossing in vergelijking tot een standaard sandwichpaneel. Een FALK EKO element heeft een binnenzijde van aluminiumfolie in plaats van een staalplaat. Het aluminium folie maakt het element minder stijf, waardoor minder grote overspanningen behaald kunnen worden. Ook is het folie gevoeliger voor beschadigingen door bijvoorbeeld harde voorwerpen.
We raden het af om de EKO variant van een dakpaneel toe te passen op de gevel. De aluminium binnenzijde heeft een kwetsbare afwerking, waardoor deze snel zal beschadigen. We adviseren om hier te kiezen voor de variant met een staalplaat aan de binnenzijde. Klik hier voor alle gevelpanelen.
We kunnen de EKO dakelementen leveren met een maximale lengte van 25 meter. Omdat een EKO element niet de sandwichwerking van een normaal sandwichpaneel heeft, is het element minder sterk. Daarom vereist dit speciale vaardigheden op de bouwplaats. Als je deze niet hebt, adviseren we je de EKO elementen tot een lengte van maximaal 15 meter te bestellen.
We geven je enkele snelle tips waarmee je de juiste informatie kunt vinden om het product toe te passen.
Neem gerust even contact op als je niet alle antwoorden op je vragen hebt kunnen vinden!
Erik van Ravenswaaij
Verkoop
Vrijblijvende offerte
Snelle reactie
Duidelijk advies op maat
Mijn aanvraag
Voeg nu kleurstalen en/of monsterstukken toe om je aanvraag te starten.
Kleurstalen aanvragenVul eenmalig je naam en e-mailadres in. Daarna heb je onbeperkt toegang tot alle FALK downloads, wanneer je wilt!