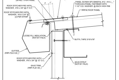
FALK RRP 40 Insulated Metal Roof Panel

The FALK RRP 40 panel, with its distinct three-crown trapezoidal profile, is an ideal roofing solution capable of spanning large spaces. 

The FALK RRP 40 panel offers varying insulation levels with core thickness ranging from 2.5 to 6 inches, ensuring energy efficiency. Its overlapping joint configuration with factory-placed foam and exposed fasteners guarantees a secure connection. Available in a variety of colors and coated with Colorcoat HPS200 Ultra®, the FALK RRP 40 panel is a beautiful, rapid-installation solution for roofs.

  • Trapezoidal Profile
  • Application Versatility
  • Can Be Mounted Horizontally or Vertically
  • Wide Color Variety and Coating Options
  • Robust Construction

Downloads

Interested in this product?

Here are some quick links to help you get all the information you need.

Chase

We're here to answer your questions!

Our team is available to assist you. Contact us if you have any questions or need further information.

Chase Byrgesen

District Sales Manager